Landgoedhuis

13 landgoedhuizen

Type A – Bouwnummers: 1, 3, 4, 5, 7, 8, 9, 11, 12, 13 
Type B – Bouwnummers: 2, 6, 10 

Aan de rand van het historische Landgoed Dennenheuvel verrijzen dertien royale en serene landgoedhuizen op een van de mooiste plekken van het landgoed. U woont hier in rust en ruimte, met zicht op zowel het bos als de klassieke kloostertuin. Het Landgoedhuis verenigt luxe, natuur en tijdloze architectuur.  

Bij binnenkomst ervaart u direct de bijzondere hoogte van de plafonds op de begane grond. In combinatie met de grote raampartijen ontstaat een indrukwekkend gevoel van licht en ruimte. Landgoedhuis Type B (bouwnummers 2, 6 en 10) heeft bovendien een doorlopende glazen pui over zowel de begane grond als de eerste verdieping, waardoor het daglicht volop naar binnen valt.

Drie buitenruimten – altijd verbonden met het landschap 

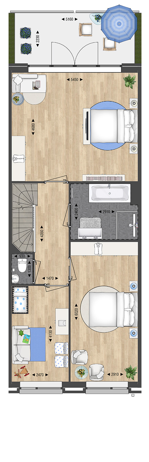
Het Landgoedhuis beschikt over drie karaktervolle buitenruimten die de beleving van het landgoed versterken. Aan de achterzijde beschikt u over een circa tien meter diepe bostuin op het zuidwesten, met terras en bergkast. Hagen en heesterbeplanting vormen natuurlijke grenzen tussen de tuin en het bosmilieu. Aan de Kloostergang vindt u een charmant zitje onder het keukenraam met uitzicht op de kloostertuin. Op de eerste verdieping sluit een ruim terras aan op de master bedroom, eveneens met zicht op de kloostertuin.

Ruimte voor alle woonwensen 

Met 218 m² woonoppervlak, een slimme indeling over drie woonlagen en maar liefst zes slaapkamers, biedt het Landgoedhuis volop mogelijkheden voor grote gezinnen, werken aan huis, logees of hobby- en wellnessruimtes. De badkamer is hoogwaardig uitgevoerd met luxe sanitair en een tweede separaat toilet op de verdieping biedt extra comfort. 

Duurzaam en toekomstgericht

Het platte dak is deels voorzien van zes PV-panelen, terwijl de rest is uitgevoerd in mossedum voor een groene, natuurlijke uitstraling én een verbeterde isolatiewaarde. Samen met hoogwaardige gevelmaterialen en een energiezuinig ontwerp kiest u met het Landgoedhuis voor een duurzame en toekomstbestendige woning.

Privé parkeren en grote berging in de kelder 

In de afgesloten ondergrondse parkeergarage beschikt u over twee privéparkeerplaatsen en een ruime eigen berging, veilig, droog en direct verbonden met uw woning.

Kenmerken

  • Woonoppervlakte ca. 218 m2 
  • 2 privé parkeerplaatsen en een privé berging in de kelder 
  • Extra hoge plafondhoogte op de begane grond 
  • Maximale lichtinval en ruimtegevoel 
  • Unieke ligging 
  • Georiënteerd op zowel het bos als de Kloostertuin 
  • 3 buitenruimten: (1) een terras met bergkast en bostuin van ca. 10m diep op het zuidwesten. Erfafscheidingen middels hagen en heersterbeplanting markeren natuurlijke afscheidingen tussen de privé tuinen en het bosmilieu, (2) een zitje onder uw keukenraam aan de Kloostergang, (3) een terras op de eerste verdieping aan uw master bedroom 
  • Veel ruimte en indelingsmogelijkheden door 3 verdiepingen met plat dak 
  • Dak voorzien van mossedum en in basis 6 PV-panelen 
  • 6 slaapkamers 
  • Badkamer met luxe sanitair 
  • 2e separaat toilet op verdieping 
  • Landgoedhuis type B (bouwnummers 2, 6 en 10) kenmerkt zich door de doorlopende glazen pui over de begane grond en eerste verdieping, die zorgt voor een zee aan licht in de woning. 
  • Bij bouwnummers 2, 4, 6, 8, 10 en 12 kan optioneel gekozen worden voor een dakterras op de 2e verdieping met weids uitzicht naar het bos 

Plattegronden

Type A | Begane grond

Type A | 1e verdieping

Type A | 2e verdieping

Type B | begane grond

Type B | 1e verdieping

Type B | 2e verdieping

Type B | 2e verdieping optie dakterras

Bouwnummer Woonopp Tuinligging Prijs
1 222m2 ZW + NO Onder optie
2 221m2 ZW + NO €1.609.500
3 219m2 ZW + NO Onder optie
4 219m2 ZW + NO Onder optie
5 219m2 ZW + NO Onder optie
6 220m2 ZW + NO Onder optie
7 219m2 ZW + NO €1.599.500
8 219m2 ZW + NO €1.599.500
9 219m2 ZW + NO €1.599.500
10 220m2 ZW + NO Onder optie
11 219m2 ZW + NO €1.599.500
12 219m2 ZW + NO Onder optie
13 222m2 ZW + NO Verkocht

© Thunnissen Groep 2026
De beelden, impressies, maten, oppervlakten en prijzen zijn zo nauwkeurig mogelijk vastgesteld. Aan de indicatieve waarden kunnen geen rechten worden ontleend.
Privacyverklaring